UNIVERSAL HOUSE

STREETNIGHTfinal.jpg

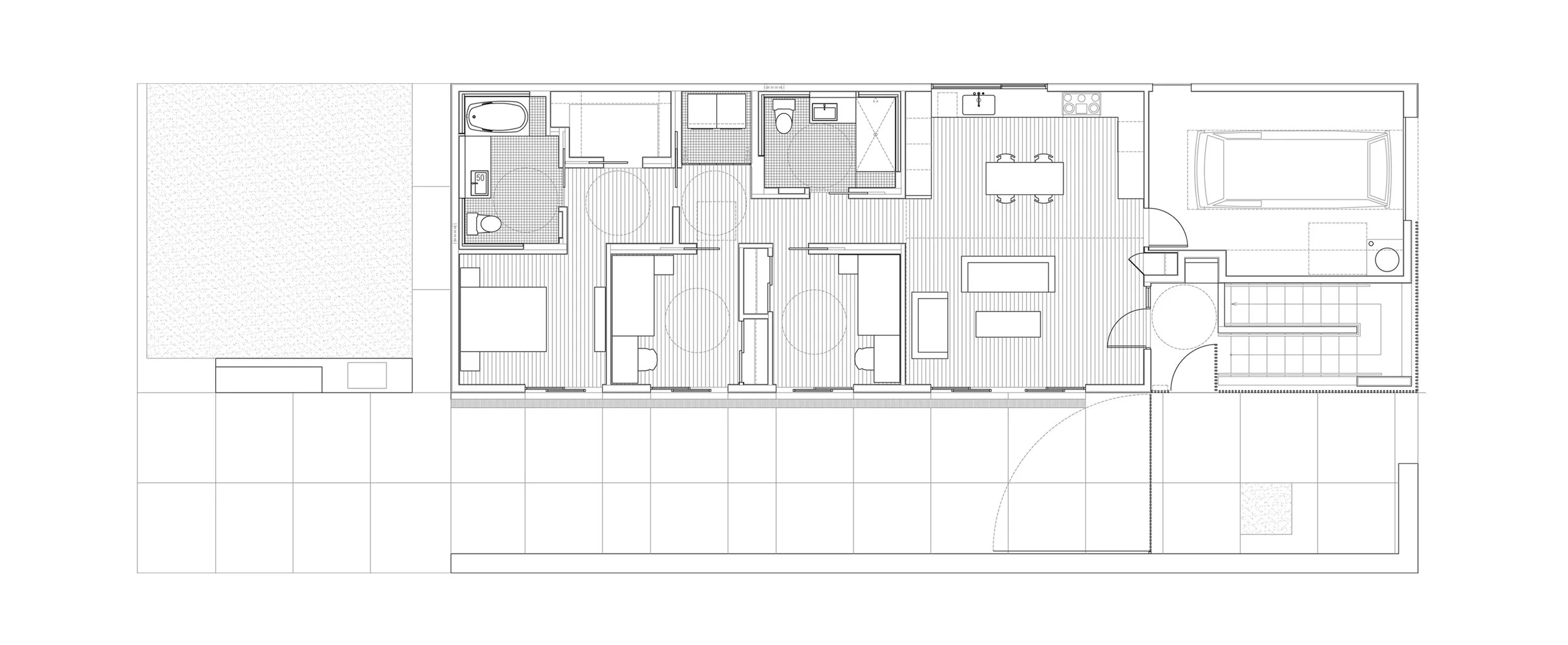
UNIVERSAL HOUSE IS COMPOSED OF “ENVIRONMENTS TO BE USABLE BY ALL PEOPLE, TO THE GREATEST EXTENT POSSIBLE, WITHOUT THE NEED FOR ADAPTATION OR SPECIALIZED DESIGN” – RON MACE. ALL PEOPLE INCLUDE, THE HEALTHY AND STRONG OF ANY CLASS OR CULTURE, THE AGING OR FRAIL AND THOSE WITH TEMPORARY OR PERMANENT ACTIVITY LIMITATIONS OR DISABILITIES. IN UNIVERSAL HOUSE THE USER IS NOT REQUIRED TO ADAPT THE HOUSE TO ANY SPECIFIC NEEDS. FOR EXAMPLE, SPECIALIZED FOLDING SHOWER STOOLS, AND BOLT-ON METAL GRAB BARS HAVE BEEN OMITTED IN FAVOR OF BUILT-IN SEATS, AND WELL LIT RECESSED GRAB BARS WHICH ARE ESTHETICALLY INTEGRATED INTO THE BATHROOMS. UNIVERSAL HOUSE PROVIDES A SENSE OF UNIVERSAL HUMANITY TO SINGLE FAMILY HOME IN ORDER TO BE USABLE BY ALL PEOPLE TO THE GREATEST EXTENT POSSIBLE, THE APPEARANCE OF UNIVERSAL HOUSE MUST SATISFY A WIDE RANGE OF TASTES, WHILE ITS FUNCTION MUST ACCOMMODATE THE NEEDS OF ANY USER. THE CHARACTER AND APPEARANCE OF A HOUSE BECOMES UNIVERSAL WHEN ITS DESIGN IS DERIVED FROM CONTEXT, MATERIALITY AND FUNCTIONALITY, NOT TRENDS OR STYLES WHICH ARE SUBJECTIVE TO TASTE. UNIVERSAL HOUSE SEEKS TO BE CONTEXTUAL THROUGH SIMPLICITY AND AIMS TO INTEGRATE ITSELF SO CLOSELY WITH ITS SURROUNDINGS THAT DISTINCTIONS BETWEEN PAST AND PRESENT, NEW AND OLD, MELT AWAY. FUNCTIONALLY, THE UNIVERSAL HOUSE RELATES TO ENVIRONMENT WHILE ALSO ADDRESSING THE FUNCTIONAL NEEDS OF ITS USERS. PASSIVE ENVIRONMENTAL STRATEGIES INCLUDE CROSS VENTILATION, SOLAR ORIENTATION, AND INDOOR/OUTDOOR SPACES. THE FUNCTIONAL NEEDS OF ITS USERS HAVE BEEN MAXIMIZED TO PROVIDE A CLARITY OF USE AND A UNIVERSAL DESIGN LANGUAGE THAT ALL USERS CAN UNDERSTAND. UNIVERSAL HOUSE COMPLIES WITH AMERICAN WITH DISABILITIES ACT 1990 (ADA). THE ASSISTIVE ELEMENTS IN AN ADA COMPLYING HOUSE SUCH AS METAL GRAB BARS, REMOVABLE BASE CABINETS, AND COLLAPSIBLE SHOWER STOOLS ARE STIGMATIC AND ALIENATE THE TYPE OF USER THAT REQUIRES THEM. THE ASSISTIVE ELEMENTS IN UNIVERSAL HOUSE HAVE BEEN INTEGRATED INTO THE ESTHETICS OF THE SPACE, AND ENHANCED AS USEFUL ERGONOMIC DEVICES FOR ALL USERS. FURTHERMORE MOST ARCHITECTURAL ELEMENTS ARE LOCATED WITHIN 48” ABOVE FINISH FLOOR. HEREIN SERENITY AND COMFORT IS INCREASED, WHILE THE ENERGY REQUIRED TO PERFORM DAY TO DAY PROCESSES DECREASES FOR ALL USERS. UNIVERSAL HOUSE IS A SPACE FOR LIFE IN THE POTENTIAL OF FUNCTION, THE CHARACTER OF PLACE, AND THE NATURE OF MATERIAL.

RENDER 1.jpg
PCSKETCH1.png
PCSKETCH2.png
 
PCPLAN6.png

PROJECT NAME: UNIVERSAL HOUSE

CLIENT: COMPETITION

PROJECT TYPE: TYPE 5 SINGLE FAMILY HOUSE

BUDGET: NOT APPLICABLE

LOCATION: PAGEDALE, MISSOURI

STATUS: COMPETITION

PROGRAM: 2,000 SF SINGLE FAMILY HOUSE BUILT TO UNIVERSAL DESIGN STANDARDS

Previous
Previous

HOUSE IN MALIBU

Next
Next

BURBANK MIXED USE