BURBANK MIXED USE

1.jpg

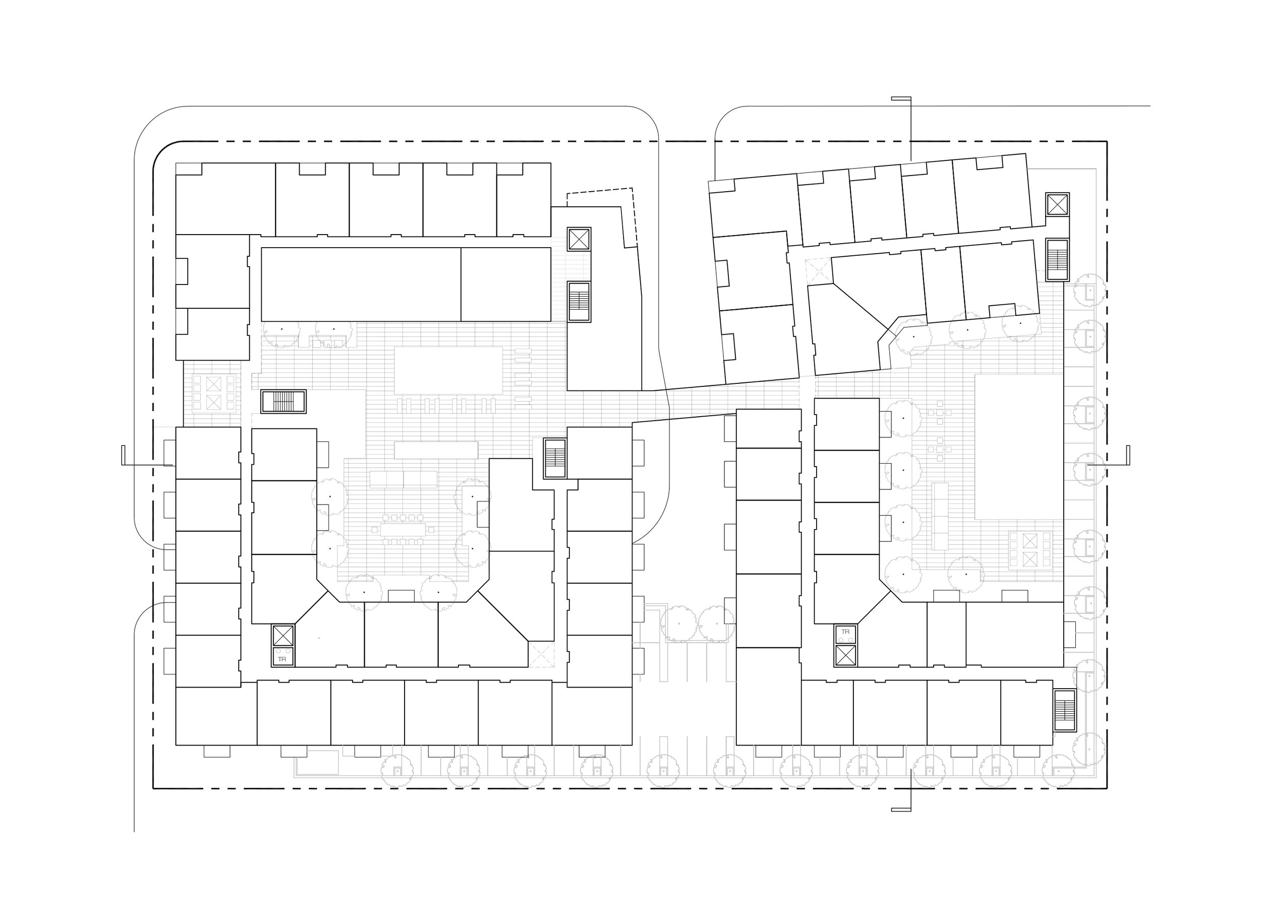
SITED AT THE SOUTHEAST CORNER OF OLIVE BOULEVARD, AND LAKE AVENUE, IN BURBANK CALIFORNIA, IS THE FIRST TRANSIT ORIENTED MIXED-USE BUILDING TO BE BUILT SOUTH OF THE 5 FREEWAY. WITHIN A SHORT WALKING DISTANCE TO THE NORTH OF THE SITE IS THE METROLINK DOWNTOWN BURBANK STATION. WEST OF THE SITE IS THE BURBANK WATER AND POWER FACILITY, WHILE TO THE SOUTH AND EAST LIE COMMERCIAL AND INDUSTRIAL ZONES. IN CONTRAST TO ITS BUILT ENVIRONMENT THE SITE IS ALSO NEARBY TO THE LOCAL SAN GABRIEL MOUNTAINS AND ANGELES NATIONAL FOREST. SEVERAL DESIGN CONSIDERATIONS WERE MADE TO ALLOW FOR THE PROJECT TO FIT ITS UNIQUE CONTEXT. FIRST, AT THE GROUND LEVEL, A 50,000 SQUARE FOOT MARKET WAS DESIGNED TO BE THE FIRST TO SERVE THIS AREA. SECOND, ALONG THE STREET WERE DESIGNED TWO STORY LIVE-WORK UNITS WITH PRIVATE GARDENS. THIRD, AND ORIENTED IN FORM TO BOTH THE SAN GABRIEL MOUNTAINS AND THE BURBANK METROLINK STATION, ARE ARRANGED THE PROJECT’S 365 RESIDENTIAL UNITS. FROM A LUSHLY LANDSCAPED AMENITY COURTYARD, STEPS LEAD DOWN TO TRANSIT STAIRS WHICH OCCUR MID-BLOCK AND ORIENT TO THE METRO STATION. FINALLY, AN INDUSTRIAL MATERIAL PALETTE WAS CHOSEN. HERE, METAL FROM BORRMANN METAL CENTER TO THE NORTH OF THE SITE WOULD PROVIDE LOCALLY SOURCED EXTERIOR PANELLING. DEFINED BY ITS CONTEXT WHILE CREATING A RESIDENTIAL CHARACTER, THIS PROJECT IS EXPECTED TO ENCOURAGE FURTHER MIXED USE BUILDING DEVELOPMENT IN THE AREA.

PROJECT NAME: olive station

CLIENT: cusumano group

PROJECT TYPE: type 3 over type 1 podium, 2 levels subterranean parking

BUDGET: 85 MILLION USD

LOCATION: BURBANK, CA

STATUS: COMPETITION

PROGRAM: 50,000 SF MARKET, 12 LIVE WORK UNITS, 325 UNITS, 425 PARKING STALLS

ARCHITECT: HED

Previous
Previous

UNIVERSAL HOUSE